
Vårt nyeste prosjekt
Kronstadveien 13
Vi har gleden av å presentere Kronstadveien 13 - en herrskapelig bygård med tre godkjente store boenheter og en uinnredet kjeller.
Boligen rommer i underkant av 500 kvm, og utvendig godt ivaretatt. Inne finnes det vegger fylt med historie og sjarm.
Boligen skal transformeres til 3-4 nydelige leiligheter.
Sammendrag
Prosjektbeskrivelse
Risikovurdering av prosjekt
Dokumentasjon
Om eiendommen
Kronstadveien 13 ligger i et av Bergens mest etterspurte og veletablerte områder, med kort avstand til sentrum, Danmarksplass og bybanen. Området kombinerer klassisk bybebyggelse med moderne utvikling, og byr på servicetilbud som caféer, dagligvare, treningssentre og nærhet til store arbeidsplasser.
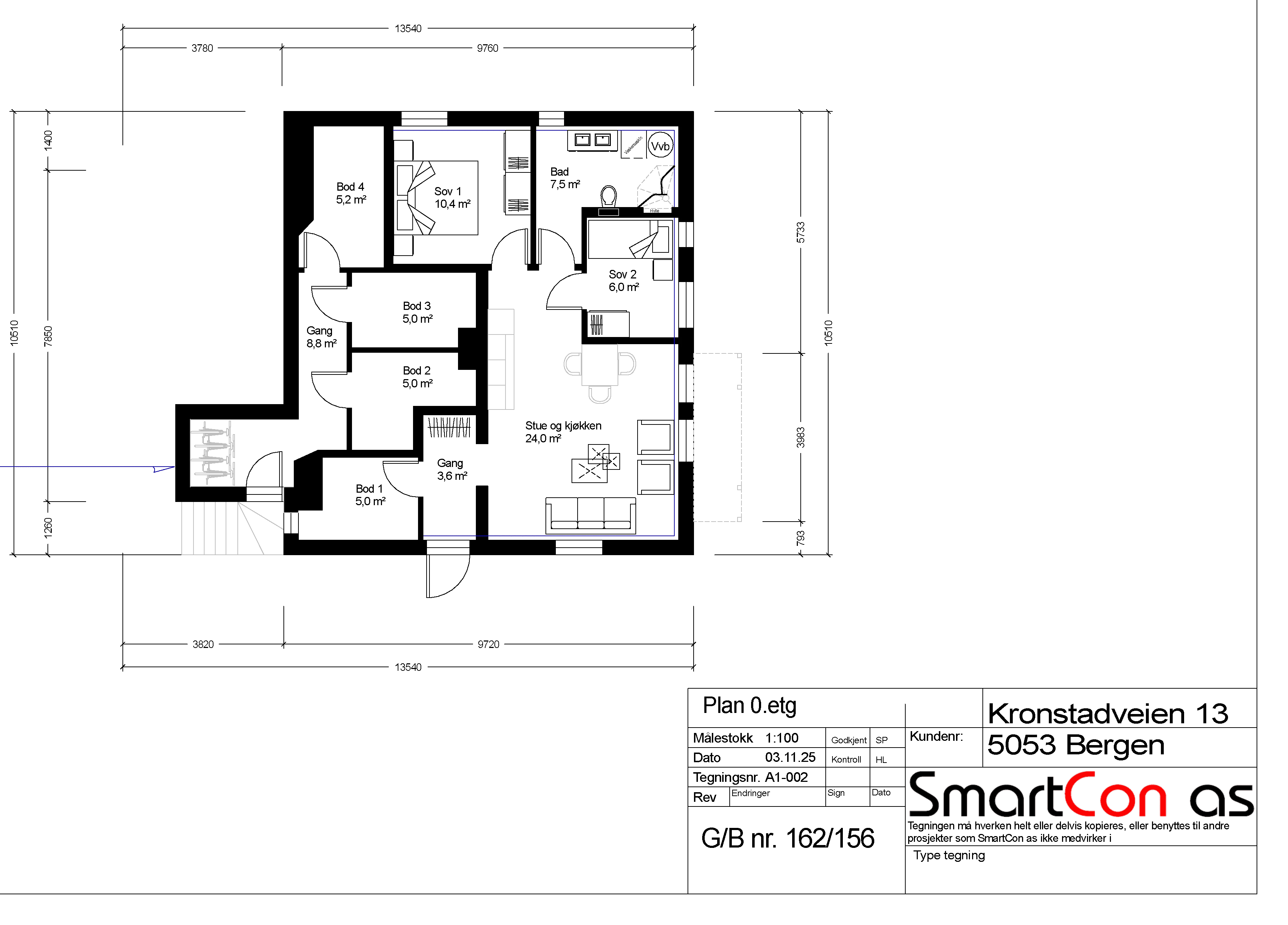
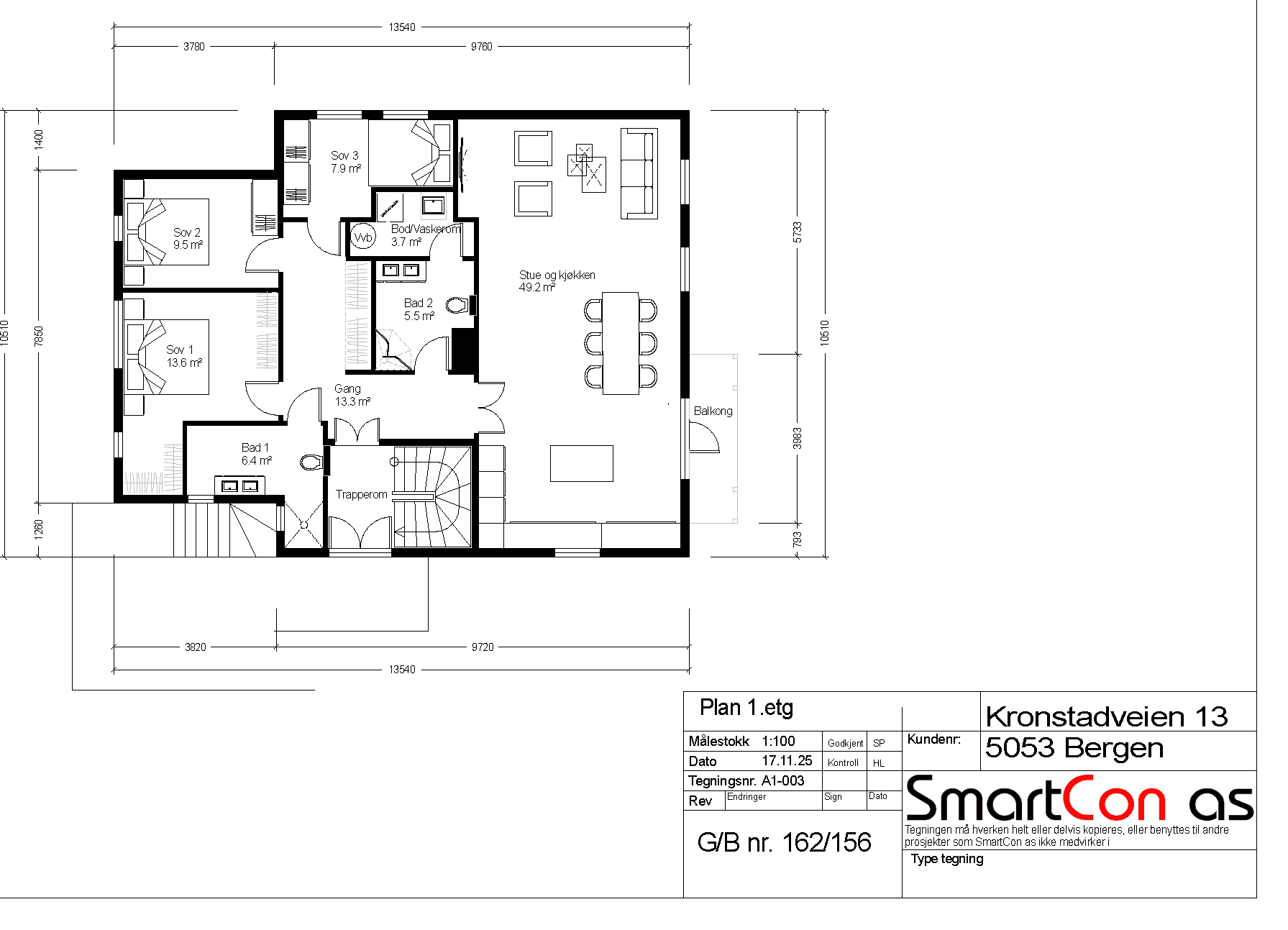
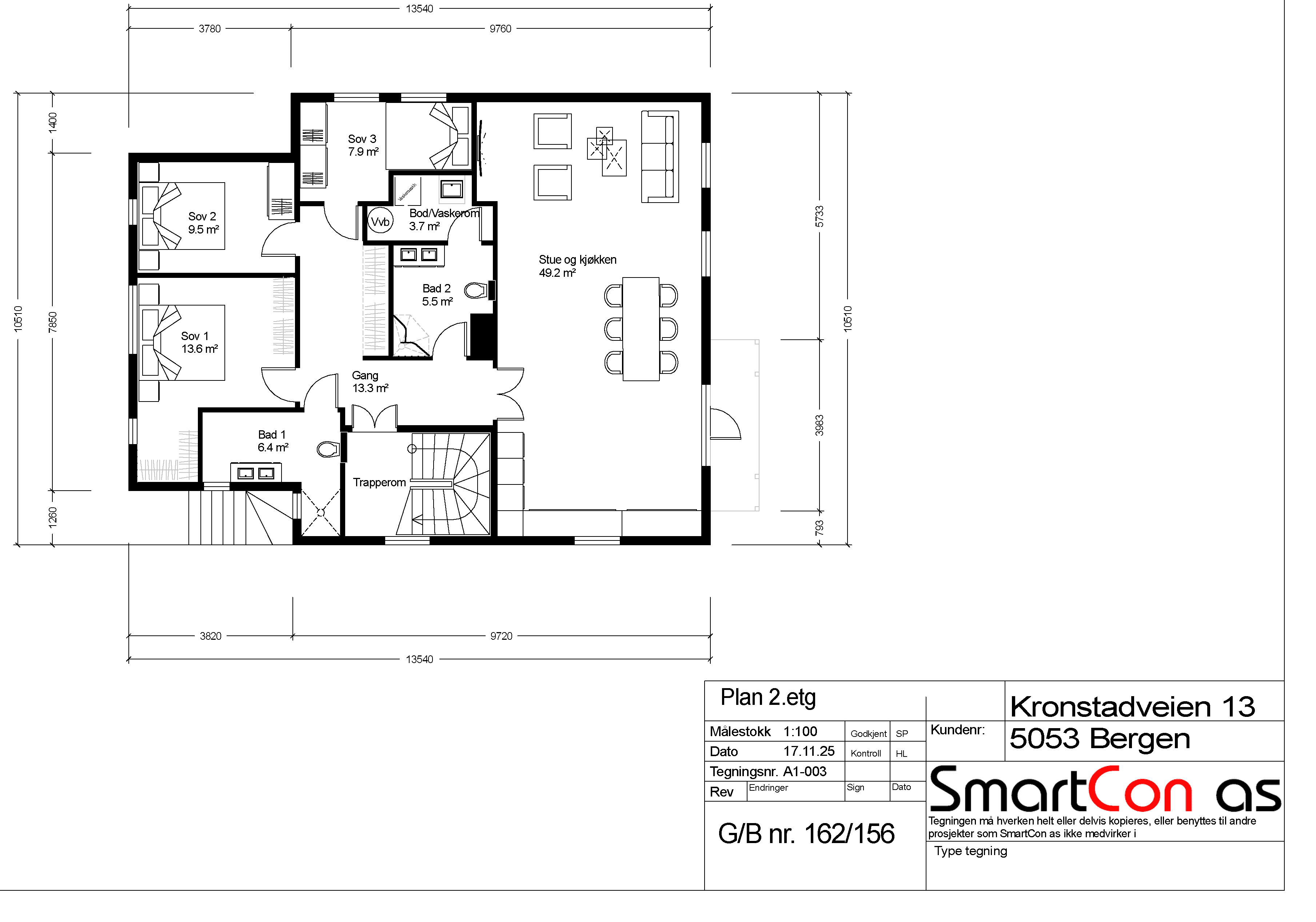
Eiendommen består av en velholdt bygård fra 1902 med elegant stil og tidstypiske kvaliteter. Bygården inneholder tre godkjente boenheter, samt en uinnredet kjeller med utviklingsmuligheter. Med ca. 3,2 meter takhøyde byr leilighetene på luftige, romslige kvaliteter som skiller seg fra nyere bygg.
Med enkel adkomst til bybane, buss og hovedfartsårer som E39, er dette et attraktivt område for både studenter, unge profesjonelle og familier.
Kronstadveien 13 tilbyr en sjelden kombinasjon av sentral beliggenhet, arkitektonisk karakter og gode bomiljøkvaliteter – et sted hvor folk trives og blir.
nøkkelinformasjon
Kjøpesum
13,7 MNOK
Estimerte oppussingskostnader
23 203 355 NOK
Egenkapital
1 000 000 NOK
Lånebehov
0 NOK
Annen informasjon
Prosjektet er igangsatt. Prosjektet er fullfinansiert
Sammendrag
Prosjektbeskrivelse
Risikovurdering av prosjekt
Dokumentasjon
Om eiendommen
Kronstadveien 13 ligger i et av Bergens mest etterspurte og veletablerte områder, med kort avstand til sentrum, Danmarksplass og bybanen. Området kombinerer klassisk bybebyggelse med moderne utvikling, og byr på servicetilbud som caféer, dagligvare, treningssentre og nærhet til store arbeidsplasser.
Eiendommen består av en velholdt bygård fra 1902 med elegant stil og tidstypiske kvaliteter. Bygården inneholder tre godkjente boenheter, samt en uinnredet kjeller med utviklingsmuligheter. Med ca. 3,2 meter takhøyde byr leilighetene på luftige, romslige kvaliteter som skiller seg fra nyere bygg.
Med enkel adkomst til bybane, buss og hovedfartsårer som E39, er dette et attraktivt område for både studenter, unge profesjonelle og familier.
Kronstadveien 13 tilbyr en sjelden kombinasjon av sentral beliggenhet, arkitektonisk karakter og gode bomiljøkvaliteter – et sted hvor folk trives og blir.
nøkkelinformasjon
Kjøpesum
13,7 MNOK
Estimerte oppussingskostnader
23 203 355 NOK
Egenkapital
1 000 000 NOK
Lånebehov
0 NOK
Annen informasjon
Prosjektet er igangsatt. Prosjektet er fullfinansiert
BILDEGALLERI
Før


































Underveis










Planer











